Завершено строительство новой пожарной части в Лидене, Швеция
Стокгольмская студия Kod Arkitekter спроектировала пожарную часть в Швеции, облицевав её ярко-красным деревом, чтобы сделать местной достопримечательностью. Здание, расположенное в сельской местности в Лидене, было спроектировано таким образом, чтобы повысить уровень безопасности в регионе. В нём могут разместиться 24 пожарных, работающих неполный день и специализирующихся на тушении лесных пожаров и преодолении сложных участков местности.
Kod Arkitekter позаимствовала характерный оттенок облицовки у фалунского красного — распространенного цвета деревянных зданий по всей Швеции, который исторически получали с помощью пигментов из медных рудников Фалуна. Это позволяет вписать его в местный контекст, а также сделать заметным с близлежащего шоссе National Road 86.

«Цвет присутствовал с самого первого эскиза», — сообщили в студии. «Здания, выкрашенные в красный цвет фалу, очень распространены в сельской местности Швеции, особенно среди скромных жилых домов и хозяйственных построек, таких как амбары и сельскохозяйственные здания», — говорится в статье. Таким образом, несмотря на то, что форма здания не является традиционной, его красная отделка в стиле фалу связывает его с культурным ландшафтом, в котором оно расположено. Цвет также сильно контрастирует с окружающей средой — зелёной травой летом и белым снегом зимой.

Место для пожарной части в Лидене было выбрано из-за близости к шоссе, что, по словам Kod Arkitekter, обеспечит «быстрое реагирование на чрезвычайные ситуации». Здание частично утоплено в землю, чтобы выровнять наклонный участок, расположенный в речной долине, и обеспечить достаточное пространство для манёвра пожарных машин.

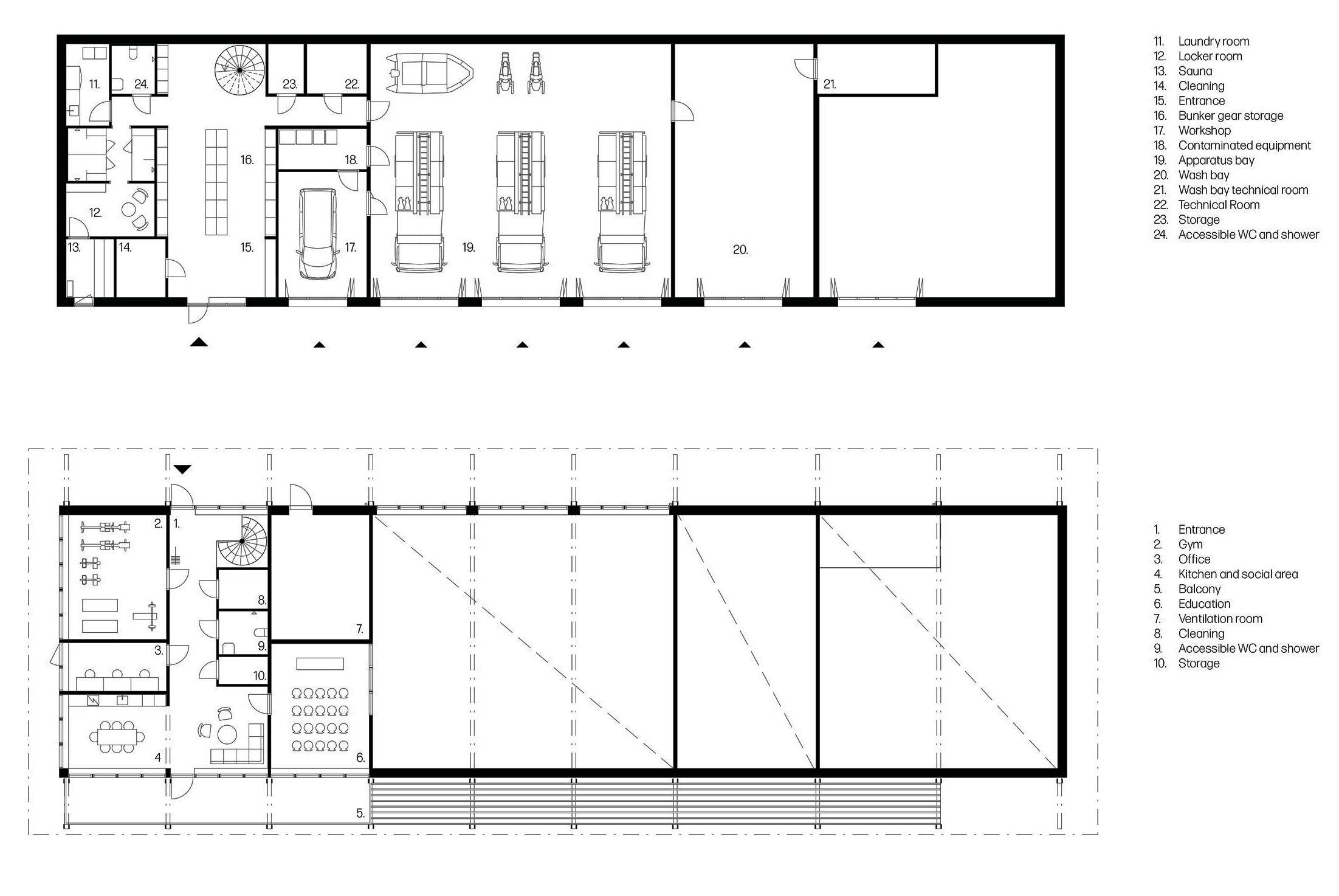
Подъездная площадка соединена с главным помещением станции — большим ангаром для оборудования и техники, в котором хранятся пожарные машины и катера. Вокруг него и было спроектировано здание. Это помещение с большими дверями примыкает к душевой, раздевалкам и мастерским для 24 пожарных. На втором этаже расположены помещения для персонала.

Основание здания, вписанное в ландшафт, выполнено из бетона, а верхний уровень — из клееной древесины (клееного бруса). Архитекторы Kod Arkitekter оставили конструкцию из клееного бруса открытой, чтобы придать фасаду ритмичность. По словам представителей Kod Arkitekter, использование бетона и дерева отражает «намеренно ограниченную палитру материалов и цветов».


«Чёткая граница между бетоном и деревом — ключевой аспект дизайна, и, чтобы подчеркнуть это, мы решили максимально ограничить цветовую палитру», — рассказали в студии. «С самого начала мы работали с простой формой, тесно связанной с её функциональным назначением. Мы решили открыть здание в сторону долины и сделать так, чтобы открытые клееные балки задавали ритм и стали его архитектурной визитной карточкой».

На первом этаже расположены тренажёрный зал для персонала, тренировочные помещения и подвесной балкон, с которого открывается вид на окружающий пейзаж благодаря расположению на возвышении. По словам представителей студии, эти помещения отделаны фанерой и красной фурнитурой, которые дополняют внешний вид здания и создают «тёплую и располагающую атмосферу» для сотрудников.

Поделиться:
Источник: archdaily.ru


Комментарии