Расширение Художественного музея Поттера в г. Парквилл, Австралия
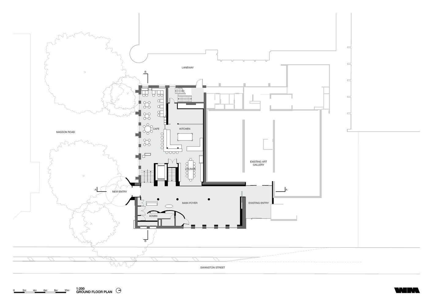
Музей искусств, образования и программ Яна Поттера (Ian Potter Museum of Art, Education and Programmes Centre) - это значительное расширение первоначального музея в кампусе Мельбурнского университета в Парквилле, который располагается в историческом здании 1930-х годов, включённом в список объектов культурного наследия. Вогнутый, зеркальный портал из полированной нержавеющей стали, соединяющий здание с кампусом и главной дорогой, ведущей из центра города, простирается от оригинального фасада, подчёркивая присутствие музея и создавая многогранный общественный интерфейс.
Проект, состоящий из четырёх этажей, включая цокольный этаж, органично соединяется с галереей викторианской архитектуры. Проект расширяет галерейное, учебное и гостиничное пространство, одновременно переориентируя главный вход музея на Массон-роуд, укрепляя его гражданскую идентичность и культурное присутствие в кампусе.


Тесное сотрудничество с университетом, музеем и Университетскими художественными музеями Австралии обеспечило согласование различных целей на основе единого видения. Архитектор Heritage architects Ловелл Чен руководил восстановлением оригинальных элементов, руководствуясь подробными исследованиями для сохранения исторической точности. Современные системы, включая термическую модернизацию и экологический контроль "АА", были тщательно интегрированы для обеспечения сохранности произведений искусства.

Сложность проекта заключалась в гармоничном объединении существующего художественного музея Яна Поттера (1998) с бывшим бактериологическим корпусом (1900-е годы) и пристройкой (1930-е годы). Ключевой задачей было согласовать различные уровни этажей между музеем и корпусом, что было решено с помощью продуманного дизайна, соответствующего требованиям DDA. В результате получился гибкий, доступный и ориентированный на будущее культурный объект, поддерживающий образование и вовлечённость.

Портал ведёт в сводчатое фойе двойной высоты, где монохромная стена из чёрного дерева ведёт посетителей через фойе и ресторан (Residence at the Potter) к существующим галерейным помещениям.

Музей предоставляет ряд специализированных и гибридных учебных помещений на уровне 1, поддерживая коллекцию произведений искусства университета и ежегодную выставочную программу. Спроектированный как место для занятий искусством, общественной деятельностью и обучения на протяжении всей жизни, он сочетает в себе гибридные учебные и выставочные помещения, климат-контроль и интегрированную систему освещения, что обеспечивает оптимальные условия как для сохранения, так и для презентации.

В новой пристройке также расположены образовательные службы, залы для семинаров, учебные помещения и галереи, гардеробные, кафе, общественные программные зоны и вспомогательные помещения, что обеспечивает гибкую среду для проведения выставок и учебных мероприятий.


Поделиться:
Источник: archdaily.ru




Комментарии