Новый жилой дом для семьи из шести человек в Берлине, Германия
На западе Берлина, между историческим лесом Грюневальд и старым маршрутом гоночной трассы AVUS, находится поместье Айхкамп, спроектированное Бруно Таутом, - жилой район, который был задуман как лесное поместье в начале 1920-х годов. Участок является одним из последних незастроенных участков в этом уникальном ансамбле. Здесь всё ещё отчётливо ощущается особый характер усадьбы, для которой характерны старые лиственные деревья, небольшие отдельно стоящие дома и почти деревенская атмосфера.
Близлежащий район неоднороден, в нём сочетаются общественные здания, такие как детские сады и школы, с частными домами на одну семью, построенными в разные эпохи. В этом эволюционировавшем контексте было построено новое жилое здание, которое гармонично вписывается в окружающий ландшафт и привлекает внимание только со второго взгляда.

Проект направлен на то, чтобы отразить историческую самобытность поместья и перевести её на современный архитектурный язык. Дом, который отвечает не только требованиям городского планирования, но и индивидуальным потребностям семьи из шести человек. Архитектурное качество здания обусловлено его местоположением - старыми деревьями, близостью к природе и традиционной типологией района.

Снаружи дом отделан тёмно-зелёной минерально-известковой штукатуркой, которая позволяет зданию визуально сливаться с окружающей зеленью, как камуфляж. Шатровая крыша, покрытая предварительно патинированной тёмной керамической плиткой, подчёркивает неориентированную форму и перекликается с формами крыш, характерными для окружающей местности. Оконные проёмы круглой, полукруглой и прямоугольной формы с высокой зональностью игриво сочетают архитектурные элементы стиля арт-деко, который был моден в то время, когда было построено поместье.

Интеграция здания в ландшафт соответствует естественному рельефу участка и дополняется цоколями половинной высоты, террасами и насыпями, которые создают плавный переход между домом и садовым пространством. Мощёная передняя площадка встречает посетителей и предоставляет парковочные места для автомобилей и велосипедов - место прибытия и граница между общественным пространством и частным миром.

Совершенно неожиданно, что внутри здание представляет собой деревянную конструкцию. Вопреки тому, что может показаться на первый взгляд, это чисто деревянная постройка, за исключением части подвала. Все стены, потолки и поверхности, включая встроенную мебель, выполнены из дерева, которое является возобновляемым ресурсом. Единственным исключением является асфальтобетонное покрытие из чёрной мастики.

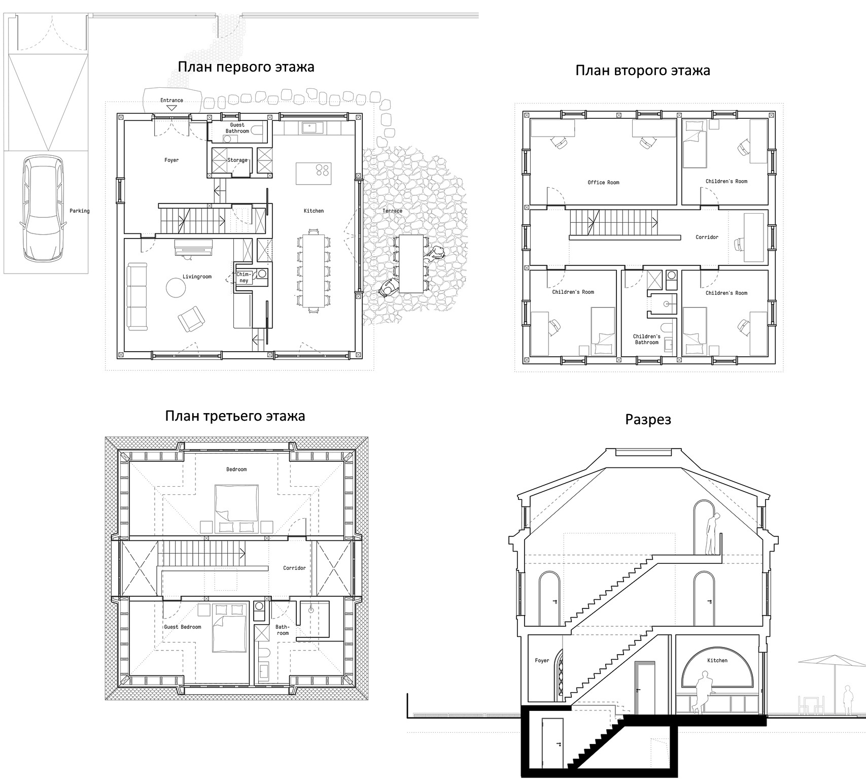
Структура помещений открытая, светлая и проницаемая, и в то же время структурирована перепадами высот, визуальными осями и намеренно расположенными укромными уголками. Входная зона спроектирована как просторное, залитое светом фойе с полукруглыми двойными дверями. Она оформлена ромбовидным остеклением. Этот элемент дизайна продолжен внутренними раздвижными дверями от пола до потолка.

Кухня с обеденной зоной является "центральным элементом" дома, поднявшись на половину этажа. Просторные полукруглые окна позволяют объединить внутреннее и внешнее пространство. К гостиной, расположенной на небольшом возвышении, примыкает комната с панорамными окнами, спроектированная как уединённое место для прослушивания музыки, чтения или беседы. Изготовленная на заказ дровяная печь с сиденьями из зелёного таделака подчёркивает домашнюю атмосферу.

На верхних этажах расположены спальни, детские комнаты и рабочие зоны - все они удобны в использовании, залиты естественным светом и имеют вид на сад и верхушки деревьев. Однопролётные лестницы, галереи и воздушные пространства создают пространственную структуру, которая, несмотря на свою простую форму, предлагает неожиданно сложное внутреннее разнообразие. Тема круглых арок продолжена в интерьерных дверях с полукруглыми арками из морёного дуба.

Поделиться:
Источник: archdaily.ru




Комментарии