Новый детский сад "Альвим" в городе Сарпсборг, Норвегия
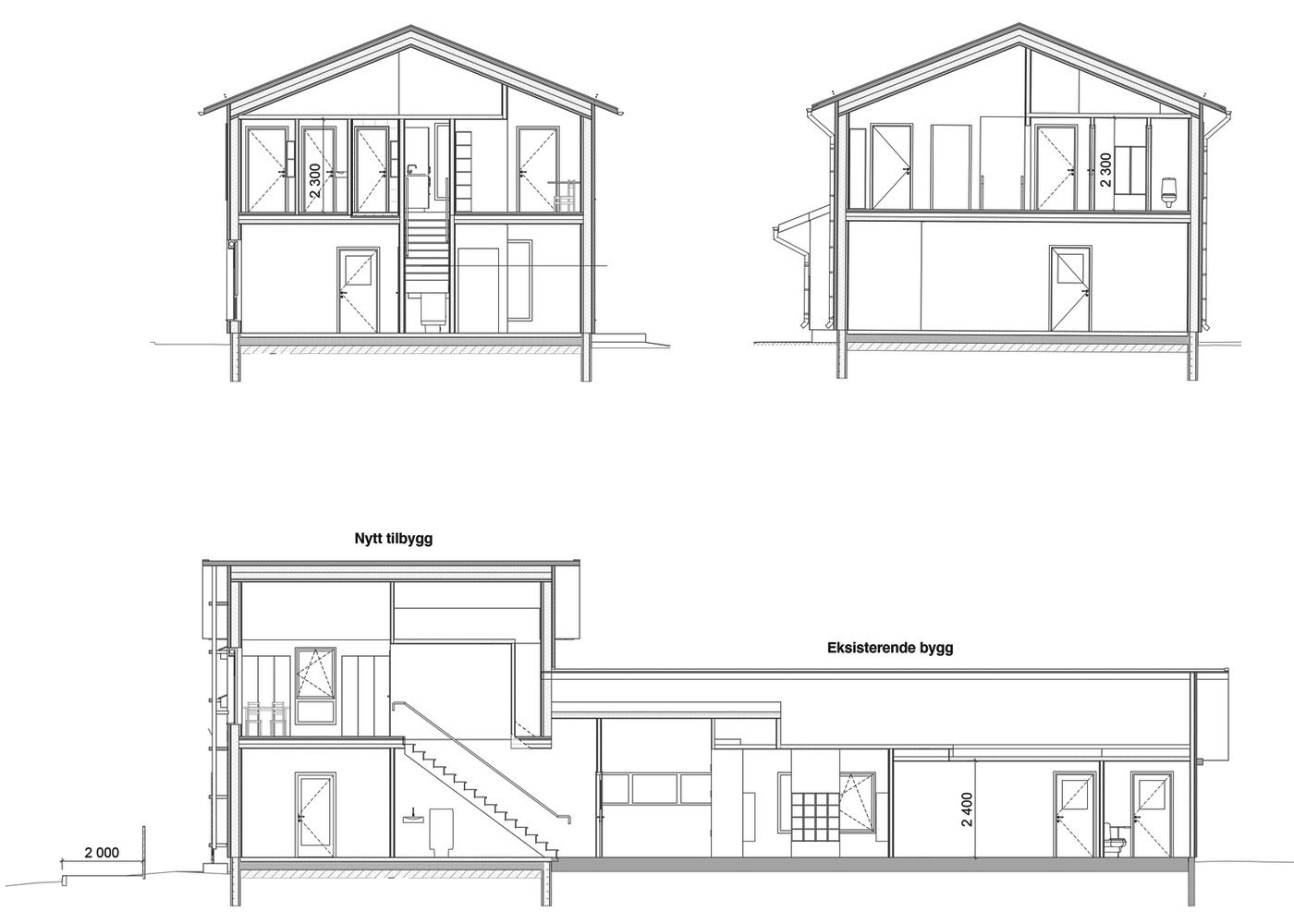
Детский сад "Альвим" (Alvim Kindergarten) расположен в районе Алвим города Сарпсборг, Норвегия. Этот район характеризуется социальными проблемами, в нём много семей с низким доходом и ограниченными возможностями по уходу за детьми. Проект предусматривает двухэтажную пристройку и реконструкцию существующего здания 1970-х годов постройки. Несмотря на ограниченный бюджет и сжатый график, строительство детского сада было завершено всего за один год, от приобретения участка до дня открытия, как раз к началу учебного года.

Новый объём смещён от существующей структуры, что является как продуманным дизайнерским жестом, так и прагматичным ответом на границы участка. В то время как старое здание одноэтажное, пристройка поднимается на два этажа, что чётко выделяет пристройку как отдельный объём. В окружающем районе преобладают белые деревянные дома, и пристройка отличается своей индивидуальностью: она обшита вертикальными деревянными досками, окрашенными в традиционный амбарный красный цвет. Выбор цвета позволяет детскому саду выделяться как общественному зданию, сохраняя при этом культурную память о красных амбарах и белых домах в норвежских сельских пейзажах.

Крыша покрыта красной глиняной черепицей в соответствии с местными градостроительными нормами, но в плоском варианте, что придаёт зданию современный вид. На фронтоне была установлена деревянная решётка - не по функциональному назначению, а в качестве дополнительного слоя благородства. Разработанная для поддержки вьющихся растений, решётка постепенно превратит фасад в живую поверхность, меняющуюся в зависимости от времени года.

Внутри здания благодаря компактной планировке и тщательной проработке деталей максимально увеличены игровые зоны. Большие окна с низкими подоконниками позволяют детям визуально взаимодействовать с окружающим миром. Стены выдержаны в приглушённых серых тонах, что создаёт спокойный фон для яркой повседневной жизни, наполненной рисунками, игрушками и активными занятиями. Центральная игровая комната выходит на более высокий потолок благодаря открытой конструкции, что создаёт пространственное разнообразие и дневной свет. Акустические потолки со встроенной подсветкой обеспечивают хорошую звуковую среду во всём помещении. На втором этаже расположены помещения для персонала, а подъёмная платформа обеспечивает доступ к конференц-залам для родителей и посетителей.


Открытые площадки были реорганизованы с целью повышения безопасности и качества обслуживания. Высадка и сбор пассажиров теперь осуществляются по улице, не встраиваясь в поток машин, а основная игровая площадка была перенесена в тихую часть площадки, подальше от близлежащего шоссе. Песочницы и рамки для лазания теперь расположены в более спокойной и безопасной обстановке, что укрепляет роль детского сада как безопасного места для повседневной жизни детей.


Несмотря на скромные масштабы, проект представляет собой важное обновление для района, где потребность в уходе за детьми высока. В рамках строгих бюджетных и нормативных ограничений проект создаёт надёжную, но в то же время самобытную архитектуру, в которой сочетаются эффективность, индивидуальность и щедрость. Детский сад "Альвим" демонстрирует, как даже небольшие, недорогие здания могут иметь важное социальное значение и как точный архитектурный выбор может улучшить как само место, так и общество в целом.

Поделиться:
Источник: archdaily.ru



Комментарии