Завершено здание-мастерская CUBE в городе Энсхеде, Нидерланды
Завершено строительство CUBE - многоэтажного здания-мастерской площадью 4734 м2 для факультета инженерных технологий в кампусе Drienerlo Университета Твенте в Энсхеде. CUBE был спроектирован Civic Architects, VDNDP и студией Groen+Schild, а построен WAM&VanDuren Bouwgroep и WSi Techniek. Здание представляет собой компактное продолжение комплекса Horst с многоуровневыми мастерскими, офисами и гибкими лабораторными помещениями.
На факультете инженерных технологий (ET) студентов обучают проектированию технологий, которые могут изменить мир. Этот смысл едва заметен в нынешнем здании факультета, Horst. CUBE меняет это. Здесь вы сможете познакомиться с профессорско-преподавательским составом. Войдя, вы увидите семиметровый цех по обработке металла и сварке.

Поскольку пол находится на глубине 1,4 метра от уровня земли, вы можете видеть станки и иметь общее представление обо всём помещении. Через большую пустоту также видны верхние мастерские. Внизу студенты и исследователи работают с машинами; вверху создаются прототипы и проходит обучение, а снаружи виден пейзаж кампуса. Таким образом, CUBE функционирует как выставка для преподавателей.

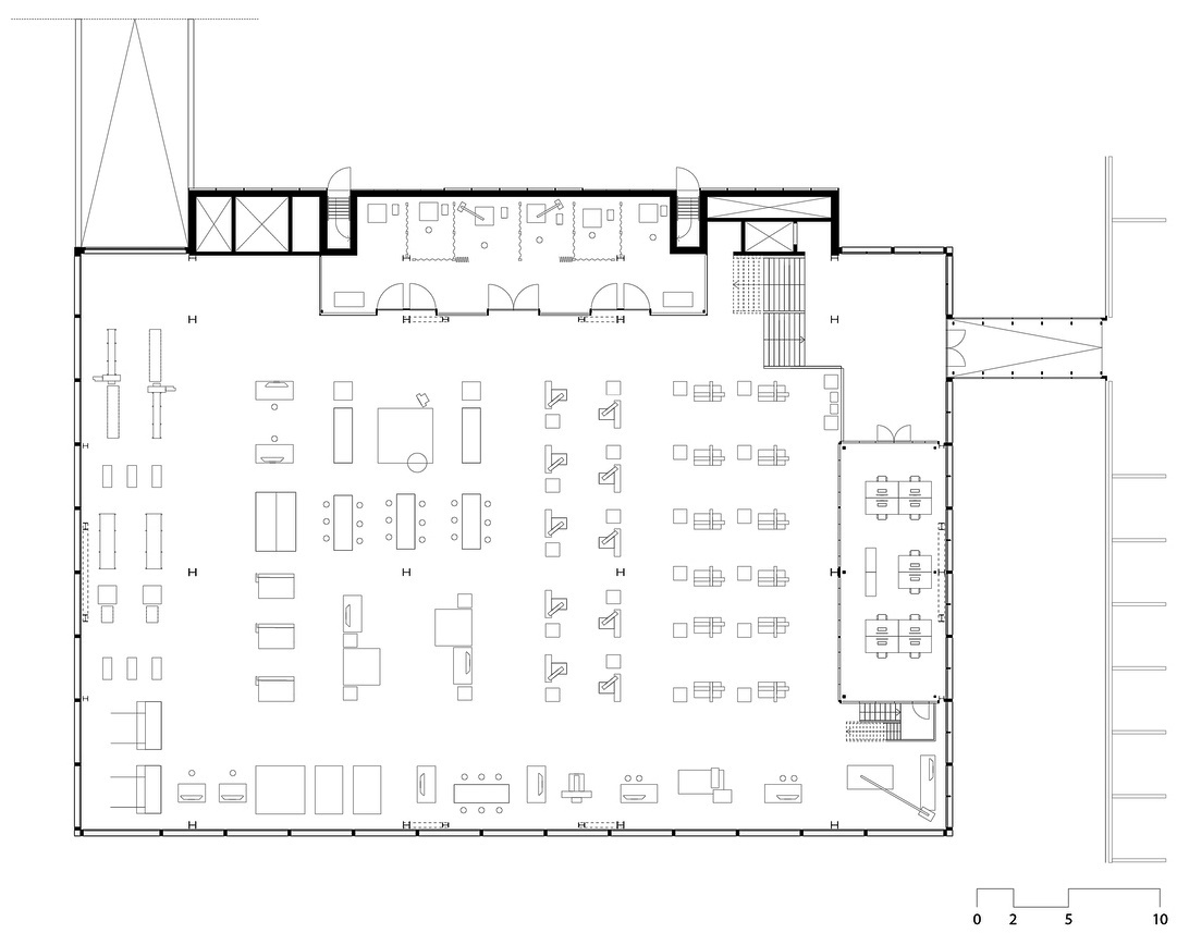
Там, где исследования когда-то требовали изоляции, сегодня инновации основаны на сотрудничестве. CUBE отвечает на это, сочетая функциональность и взаимодействие. В здании расположены пять цехов — для сварки, металлообработки, создания моделей и сборки — плюс около 500 м2 лабораторных и измерительных помещений. Они расположены штабелями, а не бок о бок, что обеспечивает компактность, малую циркуляцию и оптимальный визуальный контакт между помещениями.

Слесарный цех расположен на цокольном этаже. Офисы расположены с южной стороны, слегка приподнятые для удобства наблюдения. Выше расположены три этажа, на которых расположены приточно-вытяжные установки. Сварочные цеха находятся справа, а вход для логистики с доступом для грузовых автомобилей и вилочных погрузчиков находится с северной стороны. На втором этаже расположены сборочные и модельные цеха, на третьем - лабораторные помещения.

Рабочие помещения, зоны обслуживания и склады расположены на восточном краю в качестве "магистрали", питающей свободно конфигурируемые мастерские. Отсюда открывается вид на большие открытые пространства. Атриум в форме пирамиды пропускает много дневного света и визуально соединяет этажи. Рабочие процессы видны повсюду, как будто смотришь под капот факультета.

Преподаватели хотят, чтобы здание можно было перестраивать каждый семестр. Большие пролёты и высокие несущие перекрытия делают это возможным. Здание состоит из двух основных отсеков с 14-метровыми пролётами и более узкого отсека для каркаса. Стальные фермы, охватывающие два этажа, уменьшают количество колонн в цехе.

Архитектура усиливает функциональность здания. Этот принцип был заложен в каждой детали. Конструктивные соединения постоянно совершенствовались, а заборы, лестницы и фасады были спроектированы в мельчайших деталях. Палитра материалов проста и понятна, что соответствует функциональному назначению. Стальные фермы обеспечивают большие пролёты, а огнеупорное покрытие синего цвета подчёркивает пространственную структуру; светло-серые полы и потолки из переработанного ПЭТ-пластика придают интерьеру спокойствие и светоотражение; стеклянные перегородки обеспечивают визуальную связь. Это прочное основание дополнено рамами из лиственницы внутри и снаружи, что добавляет теплоты. Открытые фасады точно спроектированы и придают зданию технический характер. Всё здание дышит "инженерными технологиями".


Поделиться:
Источник: archdaily.ru




Комментарии