Завершено коммерческое здание STACK в городе Сеул, Южная Корея
В районе Сонбук-дон, расположенном на улице Сонбук-ро, до сих пор сохранились следы старых домов, разбросанных по всему району. В прошлом дома литераторов и известных личностей были сосредоточены вдоль бывшей реки Сончжон. Хотя многие из этих домов исчезли, и от них остались только участки, некоторые сохранились до наших дней. Здешний городской пейзаж - умеренно заполненный, но в то же время достаточно пустынный, сохраняющий спокойный, неторопливый темп среди перенаселённости центра Сеула - уникален.
Поскольку здание должно было быть построено на видном месте, которое было бы легко увидеть любому, кто путешествует по Сонбук-ро, хорошая видимость фасада и привлекательная текстура имели первостепенное значение для этой коммерческой арендуемой недвижимости, даже несмотря на юридические ограничения.

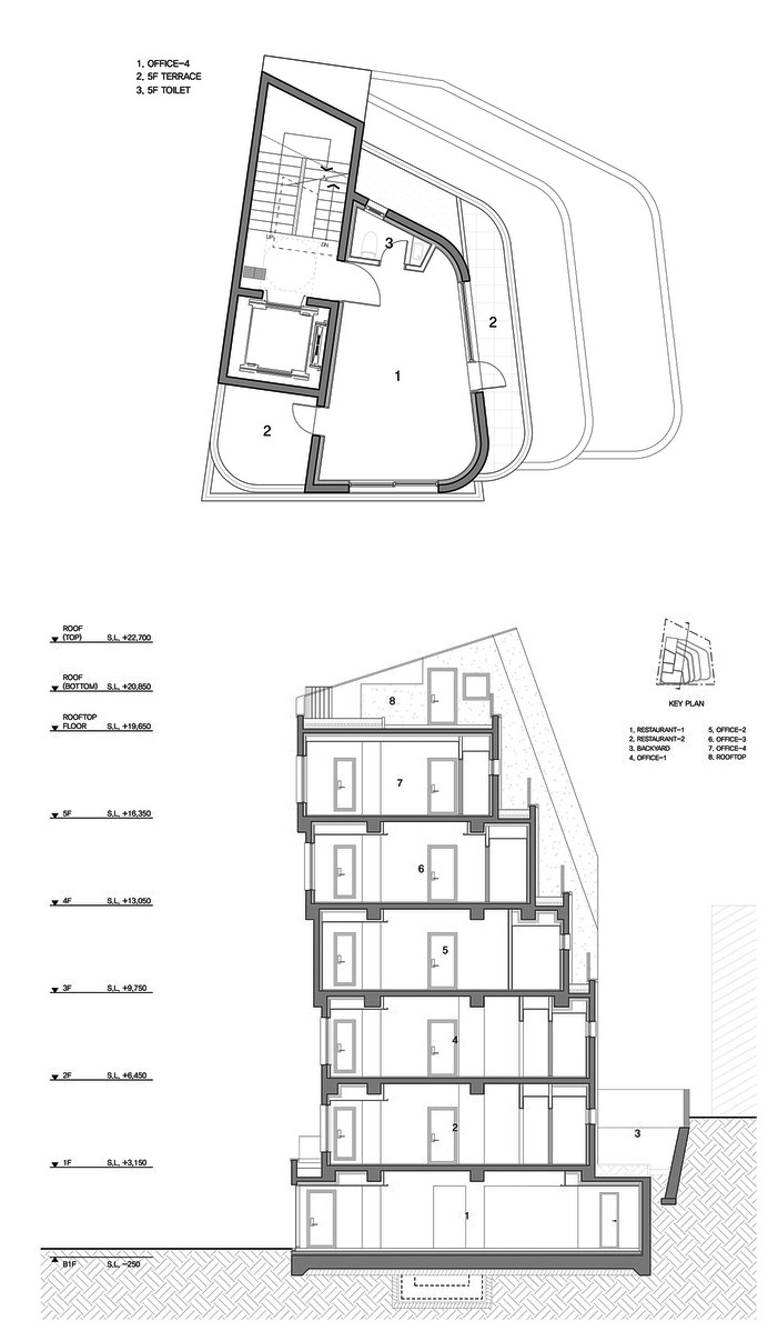
Географические условия в Сонбук-Донге были сложными. Поскольку он расположен у подножия горы Бухансан, грунт, как правило, состоит из коренных пород, что затрудняет создание цокольного этажа. Однако самым важным преимуществом участка был прямой доступ с дороги. Чтобы передать форму, которая, казалось, была вырезана из массивной, цельной скалы, архитекторы решили использовать открытую бетонную текстуру в сочетании с вертикальным рисунком, выгравированным на его поверхности.

Северная сторона участка граничит с прилегающим участком на возвышенности, что накладывает ограничение по высоте из-за правил дневного света, направленных на север. Чтобы сделать необходимый откос, который не виден спереди, заметным с главной дороги, архитекторы применили конструкцию, при которой массы постепенно выступают вперёд от 3-го этажа вверх. Эта композиция была задумана для того, чтобы создать ощущение напряженности и динамизма на фасаде здания, если смотреть с обочины дороги.


В это здание был встроен скрытый элемент дизайна. В предыдущем здании располагался магазин бургеров ручной работы под названием "Ням-ням-бургер". Архитектор постарался ненавязчиво передать воспоминания о временном кафе для бургеров, отразив в дизайне здания форму нескольких сложенных друг на друга булочек для бургеров.


Несмотря на многочисленные проблемы во время строительства, проект был завершен благополучно, и клиент очень доволен. Владелец и пользователи смогут разделить ту же привязанность и гордость, которую испытывал архитектор к этому зданию - проекту, который начался со встречи и заключения контракта в 2020 году и получил окончательное разрешение на эксплуатацию в 2025 году.


Поделиться:
Источник: archdaily.ru




Комментарии