Школа дизайна iXcampus в городе Сен-Жермен-ан-Ле, Франция
Расположенный на окраине государственного леса Сен-Жермен-ан-Ле и недалеко от центра города, iXcampus - это новый экологичный кампус, ориентированный на инновации, который сочетает в себе пригородные окрестности, пышную растительность и замечательное ландшафтное и архитектурное наследие. Новые здания являются частью общего видения, которое учитывает индивидуальность парка и, как таковое, участвует в переосмыслении кампуса. Их интеграция с существующими зданиями создаёт архитектурный диалог, гармония которого возникает из взаимодействия объёмов и общей структуры, обеспечивая тем самым гибкость, адаптивность и устойчивость архитектуры.
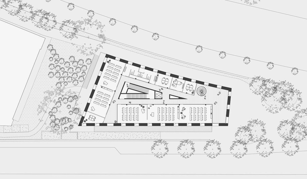
Школа дизайна, расположенная на дальней восточной стороне территории, выгодно отличается своей заметностью в городском пространстве, благодаря планировке просторной общественной площадки перед главным входом и обеспечению плавного перехода между кампусом и улицей.

Его простой и понятный объём повторяет морфологию объекта: вытянутый параллелепипед с крышей в форме вогнутой кривой. Его чёткие линии служат дефисами, соединяющими город, парк и другие объекты университета. Массивный камень на фасаде был добыт в местных каменоломнях, чтобы перекликаться с местными памятниками, имеющими аналогичную материальность, и усилить его узнаваемость на территории.


Все фасады были выполнены с одинаковым вниманием и элегантностью. Они выполнены в правильном шахматном порядке, чередуя оконные ниши с каменными и деревянными рамами. Эта логика модульности и укладки камня в штабеля позволяет создать простую, эффективную и компактную архитектуру. Простота материалов фасадов основана на правильной сетке, вариации глубины которой и чередование прозрачности и непрозрачности оживляют фасады.

Конструкция из стоек и балок с лёгкими и легко трансформируемыми перегородками обеспечивает адаптивность и обратимость здания, что облегчает интеграцию с меняющимися требованиями и организацией. На первом этаже, соединённом с общественным пространством и внешним ландшафтом, находится школьный вестибюль. Два уровня этого зала простираются под обширным открытым пространством с привлекательной сигнальной винтовой лестницей, ведущей в классные комнаты на верхних этажах.


Административные помещения расположены в самой узкой части здания, в глубине, хорошо приспособленной для такого использования. Наконец, в цокольном этаже расположены лекционный зал и компьютерные классы, которые получают естественное освещение через пышно озеленённые подвальные оконные проёмы.


Поделиться:
Источник: archdaily.ru




Комментарии