Новый общественный центр HEYDAY в городе Бангкок, Таиланд
The HEYDAY - это новый общественный центр Бангкокского университета в Таиланде. Он сочетает в себе коворкинг, фуд-корт и будущие рестораны в одном здании, что делает его самым популярным местом для студентов. Комплекс расположен рядом с университетским городком, между блочными квартирами, расположенными по обе стороны улицы протяженностью в 1 километр.

Здание состоит из трёх асимметричных объёмов с изогнутыми двускатными крышами, призванных нарушить монотонность окружающих блочных квартир. Эта энергичная и самобытная форма предназначена для привлечения студентов и преподавателей, побуждая их посетить новый центр.

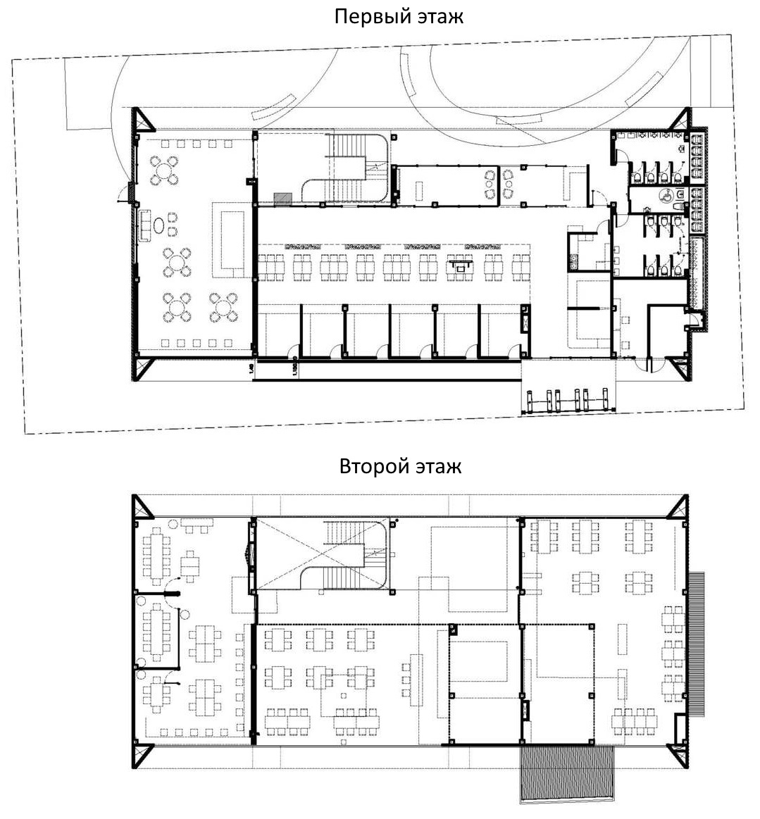
Для улучшения связи между кампусом и прилегающими квартирами были разработаны планы обеспечения доступности. В двухэтажном студенческом центре есть ресторанный дворик и помещения для сдачи в аренду на втором этаже. Голубая лестница ведёт в зону коворкинга на втором этаже.


Интерьер этой зоны отличается волнистым, изогнутым дизайном, который взаимодействует с различными объёмами по всему пространству, повторяя дизайн экстерьера. Кроме того, на втором этаже расположены два больших арендуемых помещения, предназначенных для будущих ресторанов или кафе.


Благодаря своей игривой и яркой архитектуре, HEYDAY стремится стать гостеприимным и радостным местом, где студенты, преподаватели и университетский персонал могут часто собираться, служа общим пространством для всего сообщества.


Поделиться:
Источник: archdaily.ru




Комментарии