Новое офисное здание "WoodHub" в городе Оденсе, Дания
Новое офисное здание, объединяющее несколько правительственных учреждений под одной крышей в центре Оденсе, является пионерским проектом в области крупномасштабного деревянного строительства и крупнейшим офисным зданием из древесины в Дании. Новый офисный центр вмещает 1600 государственных служащих в современном и гибком многопользовательском здании с ответственным отношением к климату, которое тщательно вписывается в окружающую среду.
Благодаря конструкции из цельного бруса площадью 31 000 м2, проект сокращает выбросы CO₂ в течение всего срока службы на 5 400 тонн по сравнению с обычным зданием и считается национальным флагманом в области документально подтверждённой низкоуглеродной общественной архитектуры. Видимые колонны из клееного бруса и частично открытые конструкции пола из CLT служат постоянными несущими элементами, обеспечивая как технические характеристики, так и приятные ощущения при сохранении углерода.

Фасады выполнены из переработанного алюминия красно-коричневых оттенков, которые перекликаются с окружающими кирпичными зданиями, создавая целостную композицию. Их различная глубина, соответствующая солнечному свету, обеспечивает пассивное затенение, что устраняет необходимость в механическом экранировании, обеспечивая при этом обильный дневной свет и комфортный микроклимат в помещении.

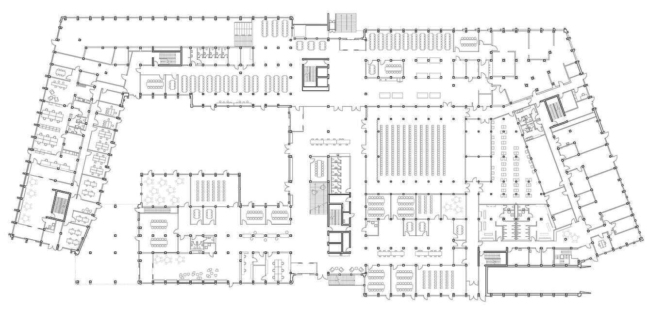
Пространственная организация создаёт надежную и адаптируемую основу, совмещая офисные рабочие пространства с местами для общественных встреч. Интерьеры могут быть изменены по мере необходимости, что обеспечивает долгосрочную адаптируемость.

Два расположенных в шахматном порядке офисных крыла С–образной формы, высотой от трёх до шести этажей, выходят окнами на восток и запад и соединяются в семиэтажном центральном крыле, где расположено большинство конференц-залов, спроектированных для максимального обмена знаниями и совместной работы.


На первом этаже расположены конференц-центр, столовая и общественный офис, которые соединяют здание с городом, соединяя городскую жизнь с внутренним садом. Ниши и зоны отдыха вдоль внешнего фасада укрепляют диалог между рабочим местом и общественным пространством.


Здание возвышается до самой высокой точки в центре и постепенно переходит в соседние строения. Террасы на крышах, сады на возвышении и зелёные дворики расширяют рабочие пространства на открытом воздухе, поддерживая местное биологическое разнообразие и предоставляя места для перерывов и встреч.

Поделиться:
Источник: archdaily.ru




Комментарии